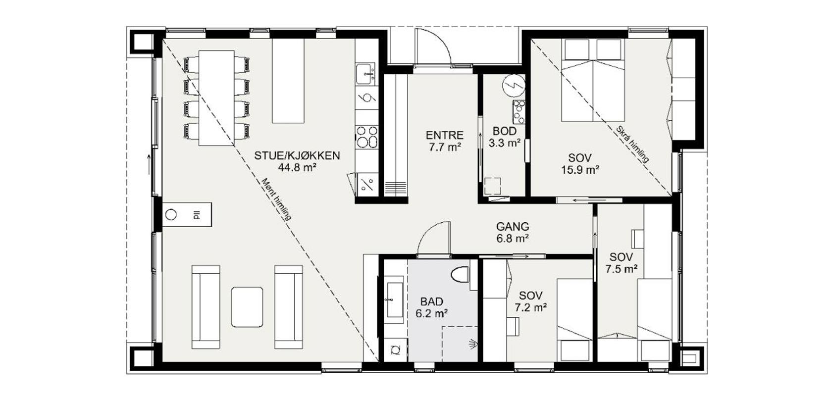
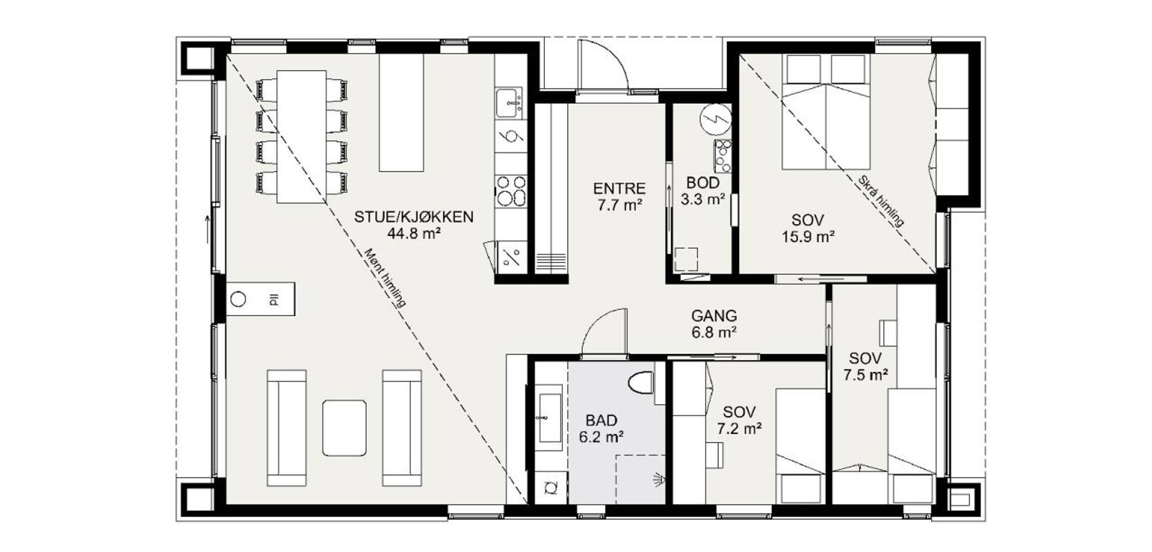
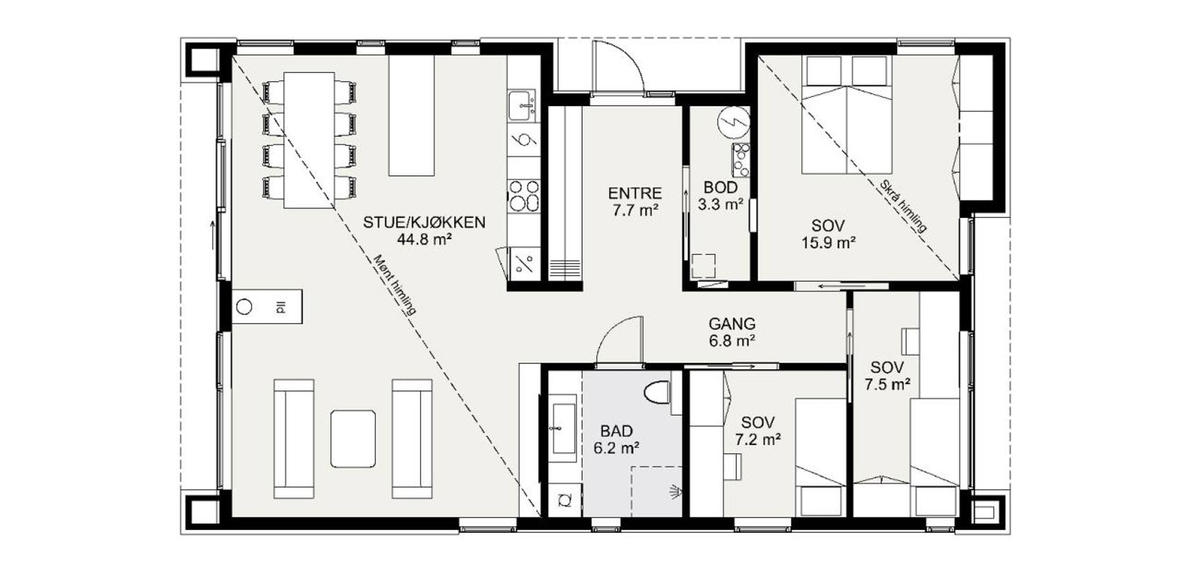
Med en BRA på 141 m², gir Strand rikelig med plass til å leve komfortabelt. Den har tre soverom og et bad i den private sonen, som kan nås fra den romslige entreen. Et av soverommene har en unik skrå himling og ekstra god plass til garderobe, noe som legger til det moderne preget og skreddersøm-følelsen.

En variant av husmodellen Strand med hems, bygget av Mustad Bygg.
I oppholdssonen vil du finne et stort og luftig rom med ekstra god takhøyde og store vindusflater. Den karakteristiske himlingen gir et flott rom som inneholder kjøkken og stue, og det er god plass til både spisebord og en koselig sofakrok. Peisen kan nytes fra både kjøkkenet og stuen, og gir prikken over i-en mens du nyter utsikten gjennom de store vindusflatene i huset. Det er også en skyvedør som fører ut til hagen fra kjøkkensonen, slik at du kan enkelt nyte utendørsområdet.

Innsiden av husmodellen Strand bygget av Mesterhus Innlandet.
Strand er designet av Trine Tellefsen, Arkitekt MNAL hos MG Arkitekter. Med sin moderne stil, praktiske planløsning på ett plan og store vindusflater, er Strand en attraktiv boligvalg for de som søker et moderne og lyst hus.